Réhabilitation d’un espace en co-living

Tailor lab

Tailor Lab est un lieu vibrant d’énergie créative où se mêlent harmonieusement le design curviligne et l’osmose créative de la jeunesse artistique. 

Dans cette atmosphère, les espaces communs deviennent des lieux de rencontre où les esprits s’entremêlent, où les collaborations naissent spontanément et où les idées prennent leur envol. 

Véritable incubateur de talents, Tailor Lab est incontestablement un foyer pour les esprits libres et les passionnés de la mode.

Moodboards

Vues 3D

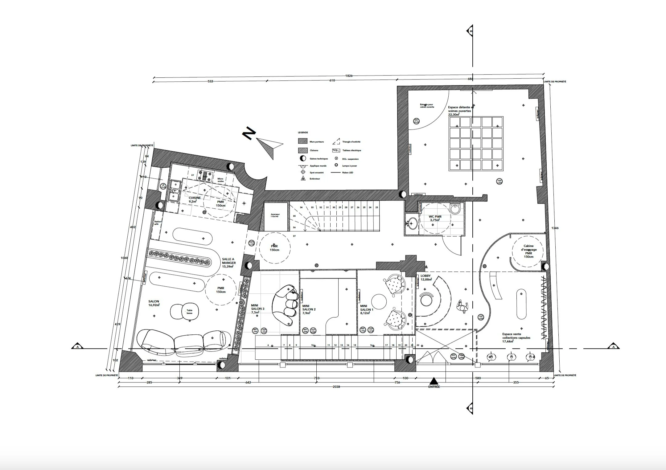
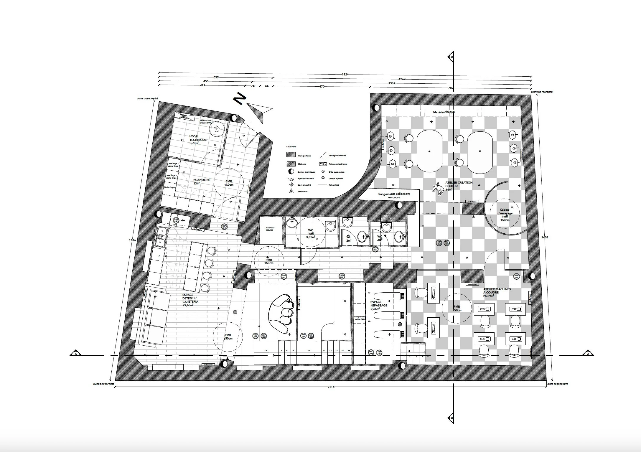
Plans techniques

Plan RDC

Plan R+1

Coupe AA

Plan RDC couleur

Plan R-1

Coupe AA couleur

Croquis

Croquis atelier couture

Croquis salon

Vous avez un projet de rénovation mais ne savez pas par où commencer ?

Réservez un entretien téléphonique

Appel découverte offert
Précédent
Précédent

Galo

Suivant
Suivant

Bokeh