
Plus qu’un séjour, un lieu de vie et de partage pour une famille jeune et dynamique.
Galo, c’est l’histoire d’un couple qui souhaite un espace qui leur ressemble et qu’ils ont plaisir de retrouver tous les jours.
Pour accompagner les clients dans ce projet, nous avons analysé leur style de vie et leurs envies pour ce nouvel appartement.
Bien qu’au départ ils soient un peu perdus, nous avons réussi à trouver un équilibre entre leur vie quotidienne avec un enfant et leurs hobbies respectifs.
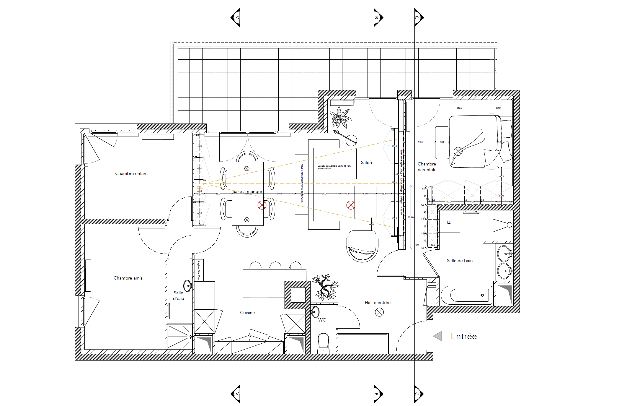
Pour ce projet le maître mot était : optimisation des rangements.
Dans ce projet nous avons réalisé 3 meubles sur mesure:
la bibliothèque en chêne et peinte avec une peinture Little Greene qui attire le regard dès que nous entrons dans l’appartement.
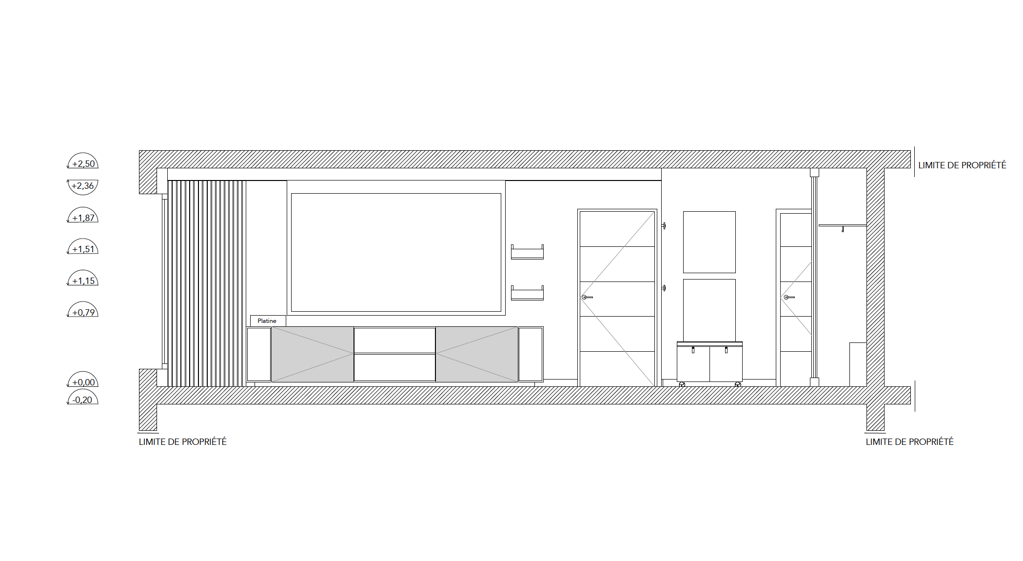
le meuble TV (sans TV) avec un écran home cinéma qui se fond dans le décor grâce à un coffrage esthétique
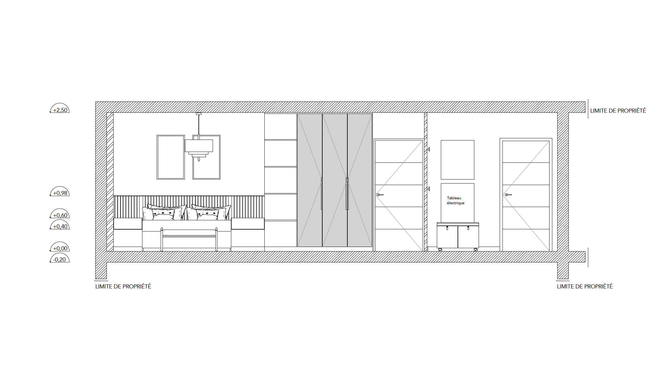
le dressing en forme de L pour optimiser le couloir dans la chambre parentale et avoir encore plus de rangement








Vous avez un projet de rénovation mais ne savez pas par où commencer ?
Réservez un entretien téléphonique
Croquis
Plans techniques
Coupe AA
Plan aménagé
Meuble sur mesure - bibliothèque
Coupe BB
Meuble sur mesure - bibliothèque côté
Coupe CC
Meuble sur mesure - dressing
Meuble sur mesure - dressing côté
Meuble sur mesure - meuble TV
Meuble sur mesure - meuble TV côté
Contactez-moi
Mon travail vous intéresse et vous voulez collaborer avec moi ?
N’hésitez pas à m’envoyer un message en remplissant le formulaire.