
Rénovation d’un appartement mansardé
Bokeh
Bokeh est l’éclat d’un rêve tissé au quotidien, qui dévoile la fresque vibrante d’une famille jeune et énergique.
Ce lieu devient la toile où l’encre du vécu trace les contours d’une saga familiale. Convivialité et partage s’entrelacent, tissant l’essence même de ce cocon. Dans l’écrin de cet appartement au dernier étage, où les frontières du possible s’effacent, les rêves prennent leur envol. Un ballet d’ombres et de lumières se joue, sculptant le rayonnement de chaque pièce, comme autant de chapitres d’une histoire.
Moodboards
Vues 3D






Plans techniques
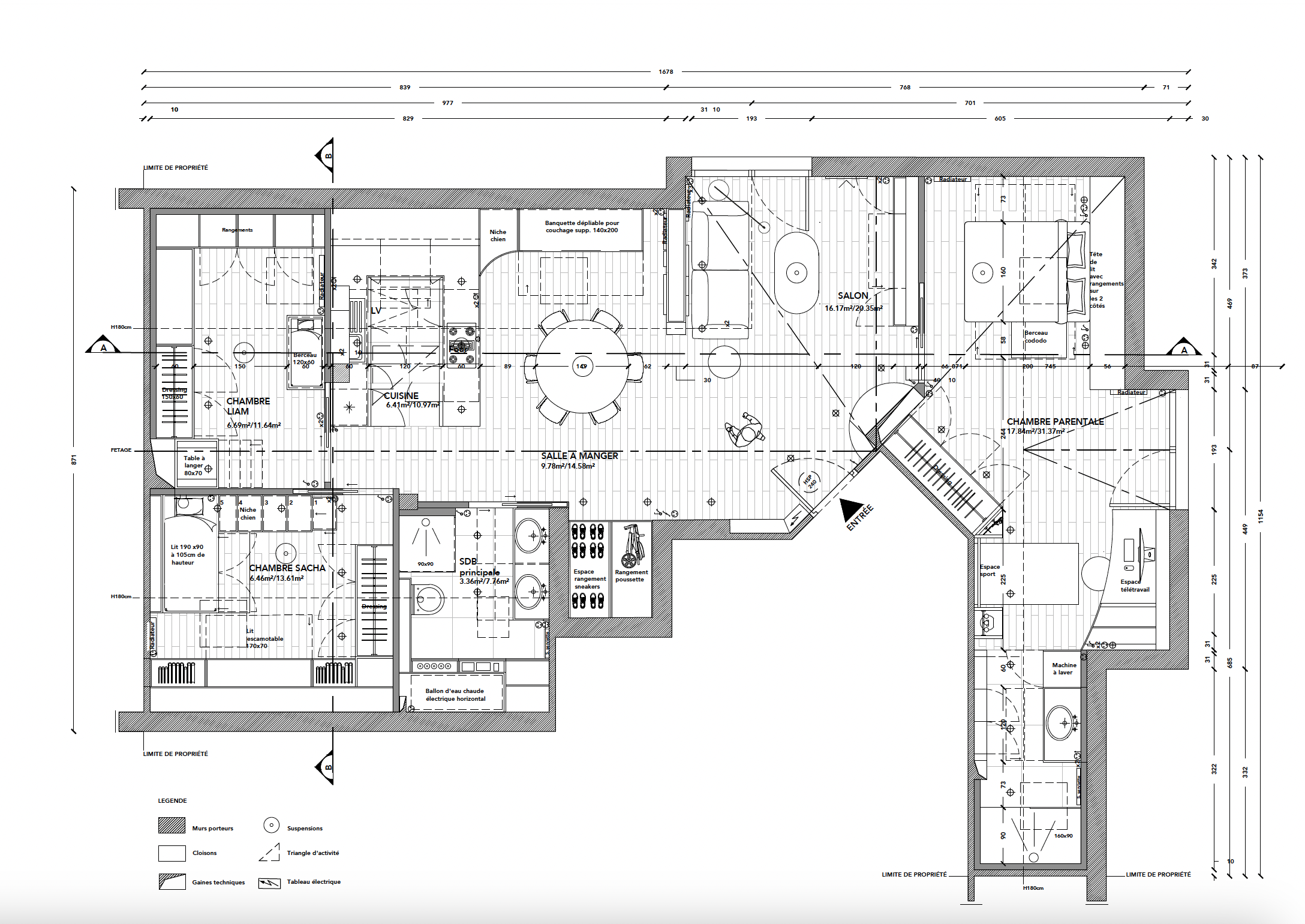
Plan NB
Coupe AA
Vue du dessus en couleur
Coupe AA couleur
Croquis
Croquis - cuisine salle à manger
Croquis - chambre enfant
Croquis - chambre parentale
Croquis - salle de bain
Vous avez un projet de rénovation mais ne savez pas par où commencer ?
Réservez un entretien téléphonique